

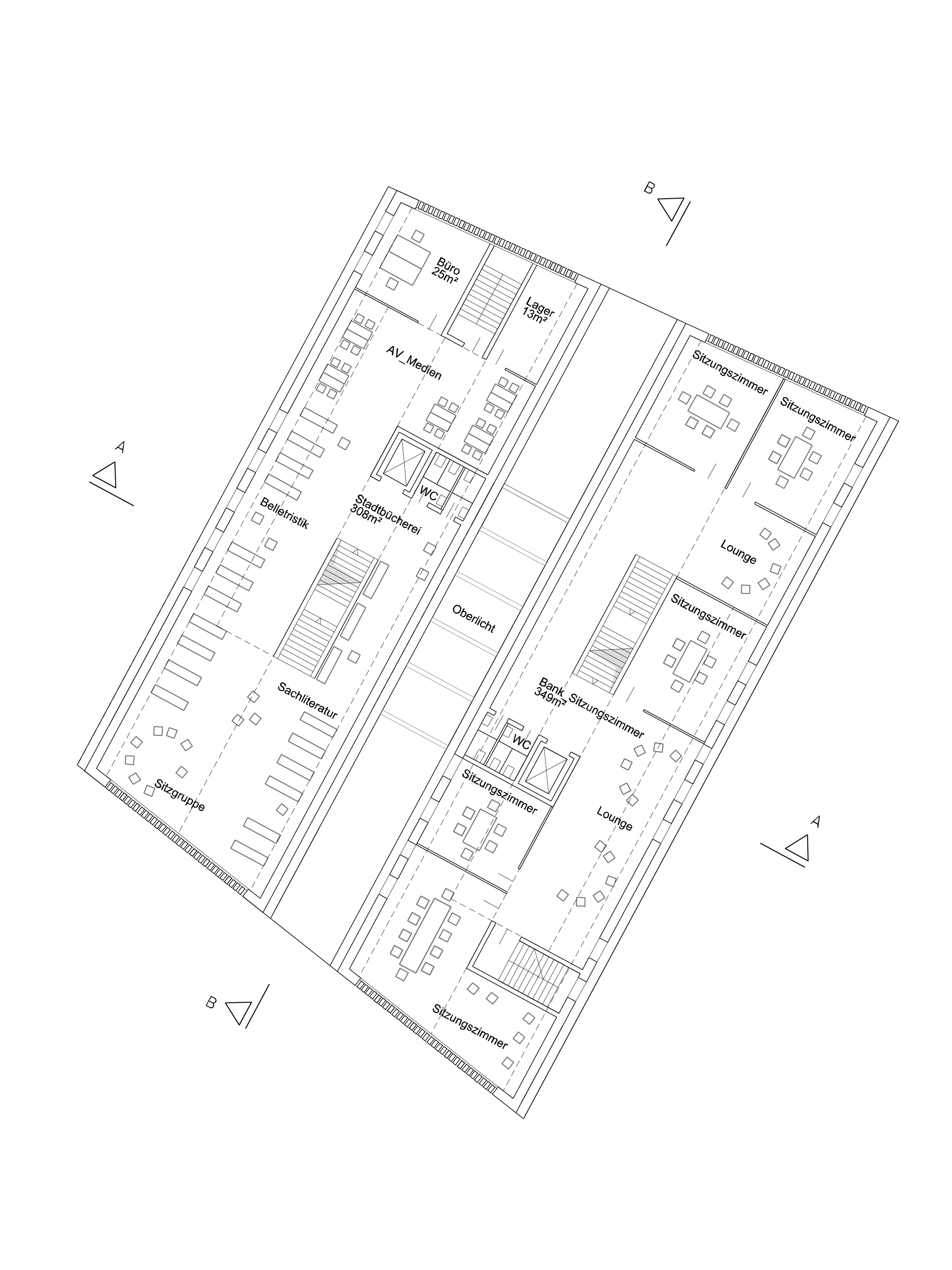
Typologie: Öffentlicher Bauherr
Bauherr: Hofheimer Wohnungsbau GmbH
Adresse: Elisabethenstraße 1, Hofheim



Arbeitsgemeinschaft HGP Architekten Frankfurt mit menzel kossowski Architekten Darmstadt
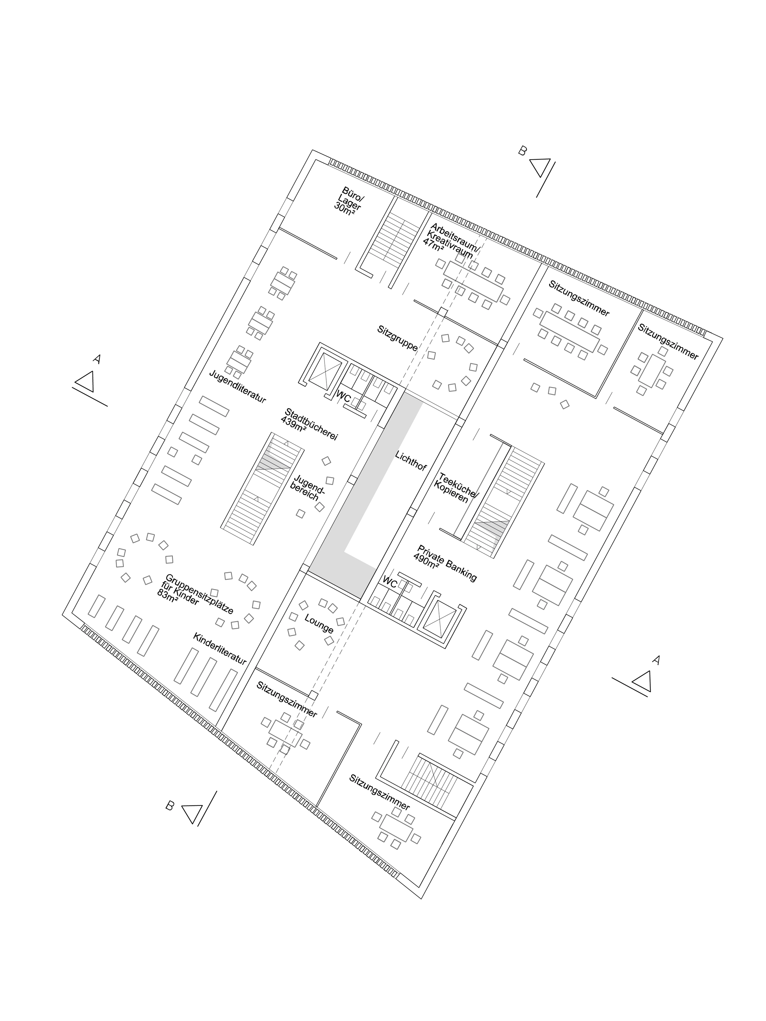
Typologie: Öffentlicher Bauherr
Bauherr: Hofheimer Wohnungsbau GmbH
Adresse: Elisabethenstraße 1, Hofheim
Arbeitsgemeinschaft HGP Architekten Frankfurt mit menzel kossowski Architekten Darmstadt